受付時間

8:45~17:15
※休:土日祝

アクセス
小田急小田原線 本厚木駅から
車で18分 駐車場あり

厚木市の屋外型トランクルーム・
レンタル倉庫【厚木市岡田A

神奈川県厚木市でトランクルーム・レンタル倉庫をお探しなら、株式会社サンリーが運営する「厚木市岡田A」へどうぞ。小田急線本厚木駅が最寄。車横付け可能な平置き・24時間利用可能、屋外型

4.1帖・1.5帖の空き室有
初月賃料無料キャンペーン実施中

サンリートランクルーム厚木岡田A

空室4.1帖(NO,T5)

サンリートランクルーム厚木市岡田A

空室1.5帖(NO,DT33)

NO,33の1.5帖です

NO,33

NO,33

NO,33

NO,33ト貸ドア鍵と購入鍵を併用使用が必要です

サンリートランクルーム厚木市岡田A

空室1.5帖ドア扉開閉について

外部から見た鍵穴

内部からみた鍵穴面

  • ドア貸鍵と販売鍵の2つ併用が必要なお部屋です
  • ドア貸鍵を鍵穴にさして右へ3回まわし、最後右へ傾けながら取ってを引いて、ドアが開きます。
  • 取っ手は引っ張るだけのものです。
  • ご注意点、扉を開けて作業する時強風などでしまってしまわないように左へつまみを1つ出しておくとストッパーとなります。
  • 庫内で作業中にドアが閉まってしまったら内部面のつまみを廻すと開きます
サンリートランクルーム厚木市岡田A

初期費用

例≫空き室4.1帖の場合

  • 初月賃料 ¥0(6か月迄以上利用で賃料無料)
  • 翌月賃料 ¥14300(賃料100%)
  • 保証委託料¥7150(初期費用時賃料の50%)
  • 事務手数料¥5500(初期費用時のみ)
  • 鍵代   ¥3300(初期費用時のみ)

 

 

例≫空き室1.5帖の場合

  • 初月賃料 ¥0(6か月迄以上利用で賃料無料)
  • 翌月賃料 ¥6600
  • 保証委託料¥3300(初期費用時賃料の50%)
  • 事務手数料¥5500(初期費用時のみ)
  • 鍵代   ¥3300(初期費用時のみ)
サンリートランクルーム厚木市岡田A

空室情報

 


価格 NO, 空室
状況
1.5帖 1.1 2.2 2.3

6,600

DT33
DT34

2.6帖

1.9 2.2 2.3

11,000

  ×
4.1帖 2.9 2.3 2.3 14,300 T5
8.0帖 5.9 2.3 2.3 27,500   ×
8.4帖 2.3 5.9 2.3 26,400   ×
  • 1.5帖タイプはドア貸鍵+販売鍵を併用必要
サンリートランクルーム厚木市岡田A

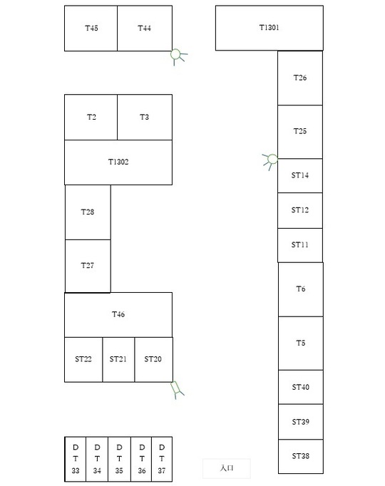
配置図

入口は1か所となります

サンリートランクルーム厚木市岡田A

施設のある場所

岡田Aの施設看板

所 在:〒243-0021 神奈川県
    
厚木市岡田4-1486-1(地番)

ナ ビ:神奈川県厚木市岡田4-6-53付近

最寄駅:小田急小田原線本厚木駅徒歩24分

バス停:岡田一本杉(神奈中バス)

近 隣:ソニー厚木第2テクノロジーセンター

サンリートランクルーム厚木市岡田A

Map

サンリートランクルーム厚木市岡田A

車アクセス

この看板奥に施設がございます

  1. 県道601号線酒井金田線
    TOTO厚木ショールームそばの交差点
    東方位のソニーテクノロジーセンターへ
  2. 2個目の交差点を左折して
    右手にピンクのマンションが見えたら
    左折します
サンリートランクルーム厚木市岡田A

施設周辺画像

施設はこの看板奥右手にあります
「アサヒ第3駐車場」の青い看板が目印

看板詳細はこんな感じです

目の前の通り道路のイメージです

こちらも同じく通り道路のイメージです

奥に小さくみえる水色が施設です

更に進んで近づいてきました

サンリートランクルーム厚木市岡田A

施設画像

施設入口から奥をみたイメージ

施設入口からみた右の配列イメージ

このシャッター扉の3室は2.6帖タイプ

シャッター貸鍵と購入鍵を併用してご利用頂くタイプです

1.5帖サイズはドア貸鍵と購入鍵を
併用してご利用頂くタイプです

NO,46は8.4帖タイプ
NO,28は横長4.1帖タイプとなります

4.1帖タイプは観音扉です

こちらは奥長の8.4帖サイズです

横長の8帖タイプです

サンリートランクルーム厚木市岡田A

事例のご紹介

ここでは弊社のお客さまの事例をご紹介いたします。

在庫置き場として

老後のアルバイトで在庫の置き場所としてトランクルームを利用しました。月々¥6600ならばアルバイト収入でまかないながら仕事ができました

プチリフォーム

ベランダの修復工事で短期間の利用でした。一時的に置き場からものをなくさなくてならないって結構大変ですよね。助かりました。


 

お勧め&ご利用事例

  • 広く使いたい方 
  • 仕事書類関連品
  • 商材の整理書籍
  • 季節品の電化製品
  • 衣類の入替え収納
  • 趣味収集品思い出の品
  • 車検時商材荷卸し預け一時保管
  • 結婚・出産・親との同居荷物増加
  • 引越・転勤・入院時荷物一時保管
  • 建替・リフォーム期間家財一時保管
  • 親の施設入居遺品整理・子独立不用品
パソコン|モバイル
ページトップに戻る